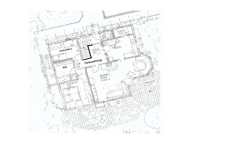
| Wohnung Erdgeschoss | ![]() |
Für Sie steht eine ca. 90 qm große barrierefreie Nichtraucherwohnung im EG bereit.
Diese besteht aus:
- einem großzügigem Wohn-/Eßzimmer
- mit Kamin
- 2 separaten Schlafzimmern
- Tageslichtbad mit Badewanne, Dusche, WC
- zusätzliches Gäste-WC
- vollständig eingerichtete Einbauküche
Terasse mit Gartenmöbel
- große Liegewiese
- mit Gartenteich und Bachlauf
Grundriss:

